La magie des fées d’Axiolis dimensionnent et font la maîtrise d’oeuvre de votre projet de mezzanine !
Il était une fois à Marseille l’heureux propriétaire d’une maison de plain-pied aux volumes généreux. Un jour, en levant les yeux vers son plafond aux proportions majestueuses, il eut une idée lumineuse :
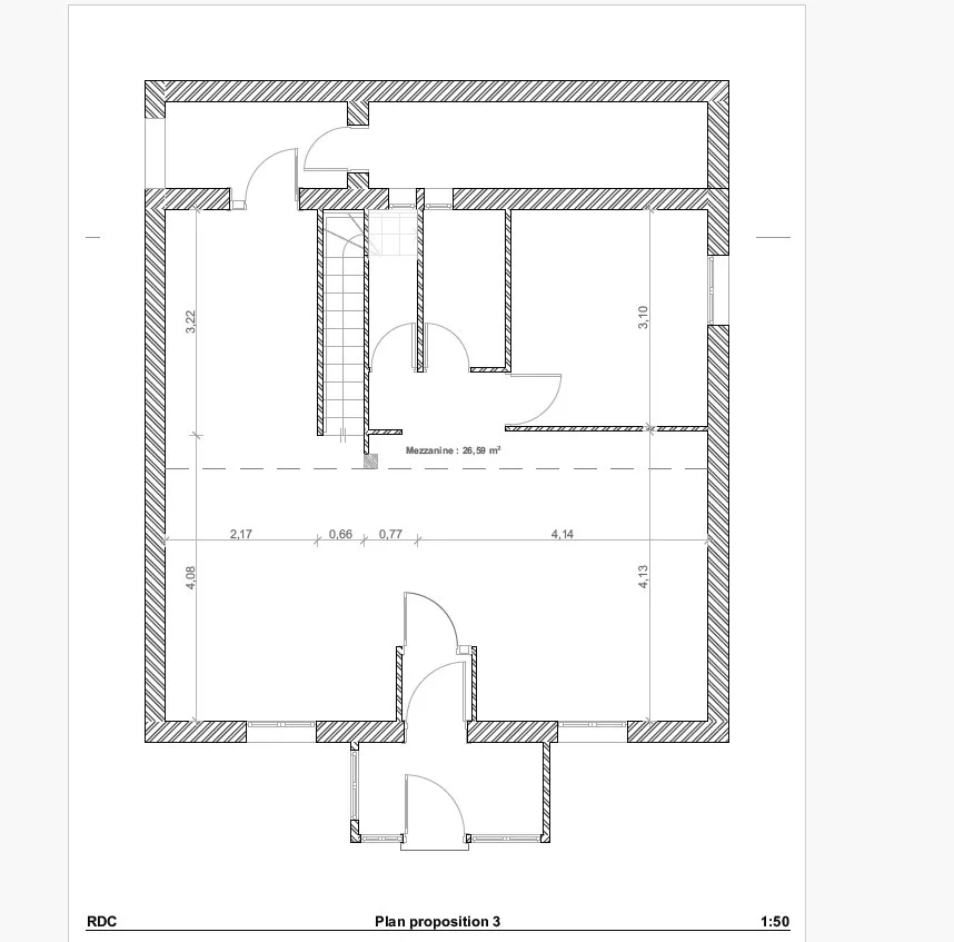
« Et si je créais une mezzanine ? »
Pour donner vie à ce projet, il fallait un partenaire capable de conjuguer expertise technique (le dimensionnement de structure) et accompagnement de chantier complet.
C’est alors qu’intervint AXIOLIS, missionnée pour la partie structure et la maîtrise d’œuvre d’exécution.
Nos équipes ont accompagné le client tout au long du projet, en proposant des aménagements adaptés qui ont :
- ✨ permis d’intégrer directement les incidences de l’aménagement sur l’étude structurelle, garantissant la sécurité et la conformité,
- ✨ facilité le suivi et la coordination des corps de métiers pendant la phase travaux,
- ✨ assuré une réalisation fluide et maîtrisée, du plan technique jusqu’à la livraison finale.
Et c’est ainsi que son idée devint réalité : un projet où la rigueur technique de l’ingénierie structurelle rencontre la qualité d’exécution du suivi de travaux.
Bon… Vous l’avez compris, rien de surnaturel dans tout cela : juste une bonne dose de savoir-faire multiples (étude de faisabilité, dimensionnement, coordination…) et de gestion de projet, comme sait le proposer AXIOLIS !
Merci à nos deux fées à l’œuvre sur ce projet : 🪄 Émilie Tourenne et 🪄 Émilie Duvernet.
💡 Vous rêvez, vous aussi, d’un projet où l’étude de structure et le suivi de travaux avancent main dans la main, du premier calcul à la dernière finition ?
