Sécuriser la réhabilitation structurelle : entre économie de la construction et pilotage en site occupé
L’intervention d’AXIOLIS repose sur une requalification structurelle intelligente, visant à prolonger la durabilité du bâti existant tout en l’adaptant aux nouveaux usages professionnels.
Diagnostic structurel et valorisation de l’existant
Le succès d’une seconde vie pour un bâtiment professionnel repose sur un diagnostic poussé. AXIOLIS a analysé la structure en place pour maximiser sa conservation, garantissant ainsi la stabilité et la résistance de l’édifice face aux nouvelles charges (équipements techniques, réorganisation des espaces) tout en justifiant la non-aggravation sismique des transformations.
Innovation mixte : bois, métal et CLT
Pour recomposer les volumes de manière sobre et efficace, nous avons conçu une structure poteau/poutre bois associée à des planchers mixtes métal/bois en CLT. Cette solution a permis la création de patios au cœur du bâtiment, apportant lumière naturelle et confort thermique sans compromettre l’intégrité de l’existant.
Sobriété énergétique et conformité au Décret Tertiaire
Ce projet s’inscrit pleinement dans les objectifs du Décret Tertiaire. En alliant réversibilité et pragmatisme technique, cette opération démontre qu’une rénovation peut être à la fois performante et reproductible, sans être une simple vitrine technologique.
AXIOLIS est intervenu sur un projet d’expertise d’envergure pour un bâtiment de coworking en R+8 situé à Lyon. Cet ensemble tertiaire de 7 000 m², livré il y a moins de cinq ans, présente une architecture moderne avec une conception mixte incluant des planchers en bois CLT (Cross Laminated Timber).
À la suite d’investigations techniques, des désordres structurels significatifs ont été identifiés : de l’eau piégée dans le complexe de plancher a provoqué une perte de matière et des défauts d’appuis critiques, rendant nécessaires des mesures immédiates de sécurisation.
Une expertise précise pour un chiffrage de remise en état après sinistre.
Dans le cadre de sa mission d’économie de la construction, AXIOLIS a activement participé aux échanges avec le collège d’experts. L’enjeu majeur consistait à valider la faisabilité financière d’un remplacement à l’identique des planchers CLT. Notre intervention a porté sur le chiffrage de remise en état après sinistre, incluant non seulement le coût des matériaux structurels, mais aussi la dépose et repose soignée des éléments de second œuvre et des corps d’états techniques (CET), garantissant ainsi la pérennité et la qualité originelle de l’ouvrage.
Arbitrage économique et logistique : deux scénarios étudiés.
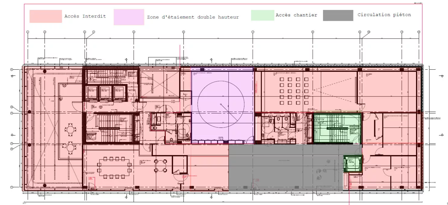
Pour répondre aux contraintes du maître d’ouvrage, AXIOLIS a modélisé deux stratégies de réhabilitation :
- Variante en site totalement libéré : une intervention optimisée en une seule phase pour réduire la durée des travaux.
- Variante en site partiellement occupé : un scénario intégrant un phasage complexe, la gestion des déménagements, le stockage temporaire et des interventions de nuit pour limiter l’impact sur l’exploitation.
Maîtrise d’œuvre et sécurisation du projet
AXIOLIS a mobilisé son savoir-faire sur la première phase de réparation des niveaux les plus impactés. Nos équipes ont assuré la rédaction des pièces écrites (CCTP), l’établissement des quantitatifs précis et la constitution des Dossiers de Consultation des Entreprises (DCE) pour l’ensemble des lots.
En complément, notre cellule Maîtrise d’œuvre d’exécution (MOEX) a été sollicitée pour piloter le phasage, le planning et la coactivité. Cette approche pluridisciplinaire permet de sécuriser les délais et les conditions d’intervention dans un environnement contraint.
Ce projet illustre parfaitement la capacité d’AXIOLIS à gérer l’interface complexe entre expertise structurelle, économie de la construction et pilotage de chantier sur des actifs tertiaires occupés à forts enjeux.
